NOTICE IS GIVEN that Council of the City of Colwood will hold a Public Hearing on Thursday, Nov. 27, 2025, at 6:30 p.m. in relation to the proposed Bylaw “Official Community Plan Bylaw No. 1700, 2025, Amendment Bylaw No. 1700-14 (North Latoria Area Plan).”
PURPOSE: Proposed amendments to the City of Colwood’s Official Community Plan Bylaw No. 1700 to create the North Latoria Area Plan, which will include land use policies specific to the subject properties noted below. The bylaw also proposes amendments to the Neighbourhood Centre land use designation to increase the height from 4 to 6 storeys and the maximum density from 1.75 Floor Area Ratio (FAR) to 2.5 FAR for lands subject to the North Latoria Area Plan only. It also proposes amendments to the Neighbourhood Hillside and Shoreline land use designation to permit low-rise apartments and to increase the maximum density from 1.2 FAR to 2.5 FAR for lands subject to the North Latoria Area Plan only. Several maps in the Official Community Plan will also need to be amended to align with the proposed local area plan.
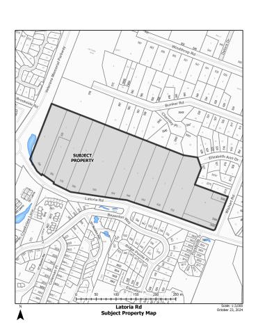
SUBJECT PROPERTIES: This Bylaw applies to the lands legally described as
• 594 Latoria Road: Lot A, Sections 60 and 61, Esquimalt District, Plan VIP10185
• 588 Latoria Road: Lot 2, Sections 60 and 61, Esquimalt District, Plan VIP37605
• 586 Latoria Road: Lot 1, Sections 60 and 61, Esquimalt District, Plan VIP37605
• 576 Latoria Road: Lot C, Sections 60 and 61, Esquimalt District, Plan VIP10185
• 568 Latoria Road: Lot D, Sections 60 and 61, Esquimalt District, Plan VIP10185
• 560 Latoria Road: Lot 1, Section 61, Esquimalt District, Plan VIP7244
• 554 Latoria Road: Lot 2, Sections 60 and 61, Esquimalt District, Plan VIP7244
• 546 Latoria Road: Lot 3, Sections 60 and 61, Esquimalt District, Plan VIP7244
• 542 Latoria Road: Lot 4, Sections 60 and 61, Esquimalt District, Plan VIP7244
• 538 Latoria Road: Lot 5, Section 61, Esquimalt District, Plan VIP7244
• 532 Latoria Road: Lot 2, Section 61, Esquimalt District, Plan VIP23793
• 3580 Wishart Road: Lot A, Section 61, Esquimalt District, Plan EPP13429
• 3584 Wishart Road: Lot B, Section 61, Esquimalt District, Plan EPP13429
SUBJECT PROPERTIES MAP:

INSPECTION OF MATERIALS: Review copies of the proposed bylaw and related materials [PDF/11.4MB] or review materials in-person at Colwood City Hall from November 19 to 27, 2025, between 8:30 a.m. and 4:30 p.m., Monday to Friday.
We want to hear from you!
WRITE TO US:
The deadline for written submissions is 12:00 p.m. on the day of the meeting and must include your name and civic address.
- Email: publichearing@colwood.ca
- Mail/Drop-off: City of Colwood, 3300 Wishart Road, Colwood, BC V9C 1R1
Please note the full content of all submissions will be published, including name and address. For more information about Freedom of Information and Protection of Privacy, go to www.colwood.ca/FOIPPA
SPEAK TO COUNCIL:
- In Person: The The public is welcome to provide comments in person during the public participation portion of the meeting. Public will be permitted in the Council Chambers on a first come, first served basis until capacity is met.
- Electronically: To pre-register to speak please contact publichearing@colwood.ca up until noon on the day of the meeting. Dial-in by phone 1-855-703-8985 (toll free) or 1-778-907-2071 or login to Zoom.us or the Zoom app. For both options use ID Number: 894 7799 0453
WATCH THE PUBLIC HEARING ONLINE: www.youtube.com/@cityofcolwoodmeetings9957
NEED MORE INFORMATION? Contact Planning at 250-294-8153 or planning@colwood.ca